Techniniai brėžiniai
Techniniai brėžiniai yra pirminė ir labai svarbi interjero projektavimo dalis. Brėžiniuose pateikiama detali informacija, kuria vadovaujantis yra atliekami apdailos darbai. Brėžinių kainas projektui skaičiuoju individualiai, įvertinusi būsto plotą ir esamą situaciją. Atlieku visus vidaus interjero darbams reikalingus techninius brėžinius:
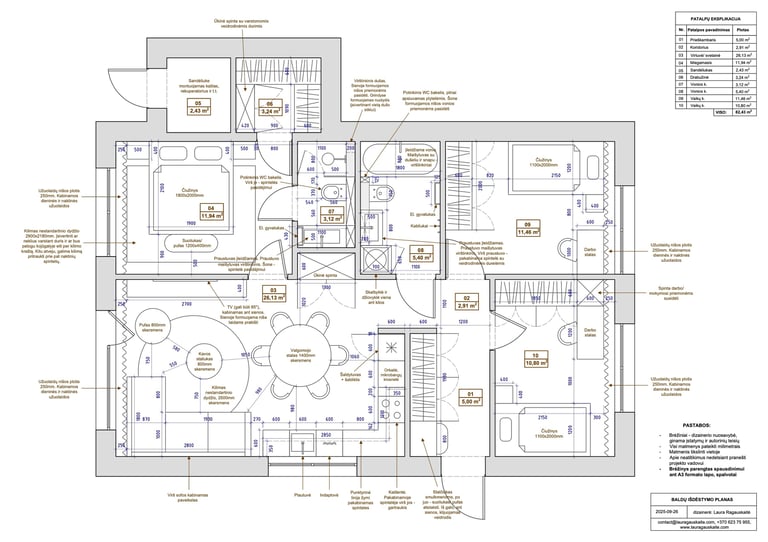
Baldų išdėstymo planas
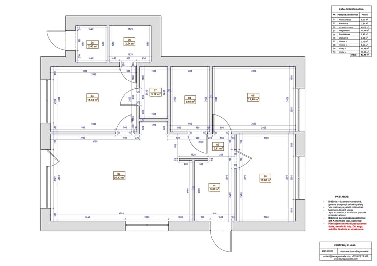
Pertvarų planas
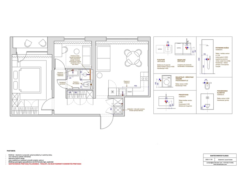
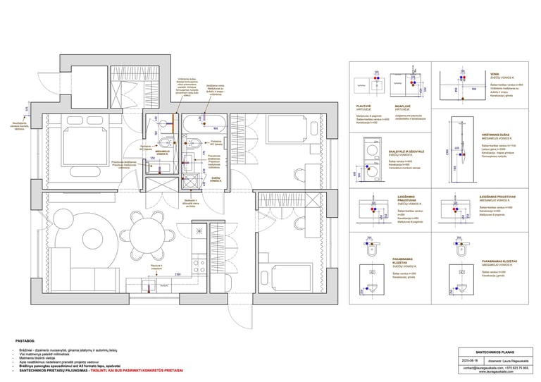
Santechnikos planas
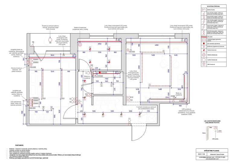
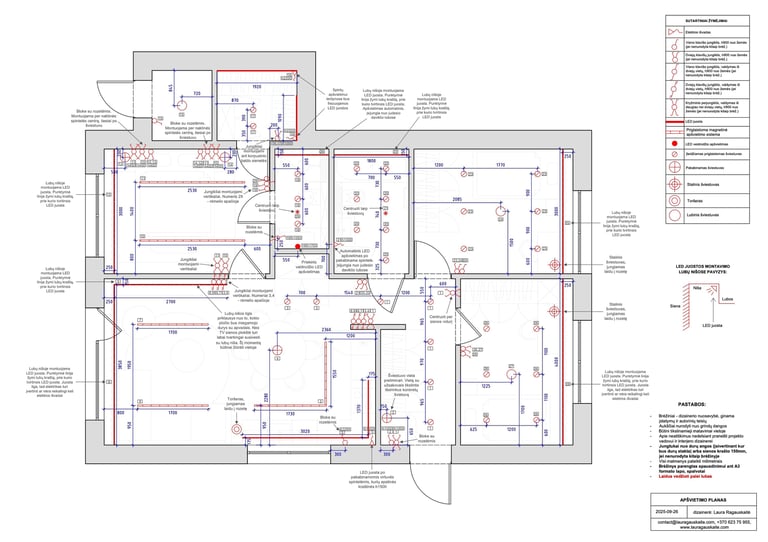
Apšvietimo planas
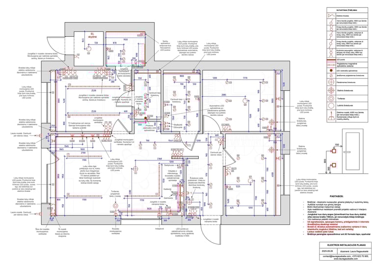
Elektros instaliacijos planas
Grindų dangų planas
Sienų apdailos planas
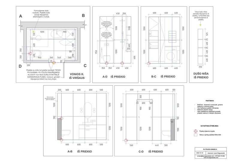
Plytelių išklotinės
Lubų planas
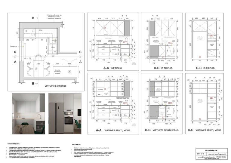
Individualiai gaminamų korpusinių baldų brėžiniai
Kiti







